请选择 进入手机版 | 继续访问电脑版
 找回密码
 立即注册

QQ登录

只需一步,快速开始

微信登录,快人一步

QQ登录

只需一步,快速开始

微信登录,快人一步

黄墙里的小酒馆. 焦溪是家小院

2025-09-09 发布
首页 / 设计类 901 0 0

parallect

积分:46

私信

本帖最后由 parallect 于 2025-9-11 15:43 编辑

黄石墙里的小酒馆

是家小院位于常州焦溪古镇的核心区,原为一处三进民居,由于大部分建筑已坍塌、损毁,现场仅保留一个主体建筑以及残留的黄石半墙。对历史建筑的保护、修缮、活化和利用,是对抗时间和失忆最有效的一种方式。在我们介入前,东南大学建筑设计研究院已对遗留建筑进行了修缮。本案设计希望将小院打造为一个可以连接古今的小酒馆,让一度成为废墟的小院重新焕发生机。在飘着酒香的小巷里逛一逛这里的老房子,走一走康熙年间保留至今的石板路,午后坐在黄石半墙的小院子里欣赏秋色,围炉煮茶,将会成为人们体验这座水乡古镇的极佳方式。

▼项目区位

图片 1.jpg

焦溪古镇依龙溪河而建,已有700余年历史。龙溪河沿岸弯拱高耸、麻石横跨、码头密布,荟萃了11处文保单位、26处历史建筑,是当年龙溪河两岸热闹生活留下的深深印记。

▼项目鸟瞰

图片 2.jpg

是家小院得名于“是”这一稀有姓氏,目前全国的是姓人口不足9000人,常州的是姓约占全国是姓总人口的50%,焦溪地区又占到常州的50%。与其他粉墙黛瓦的江南水乡古镇不同,这里的传统建筑大多运用黄石半墙砌筑,这些就地取材的石头来自附近的舜山、鹤山。石头砌成的房子不仅更加坚固,而且可以呼吸,即使洪水过后,屋内的水汽也可以从缝隙间散去,不易发霉。

▼小院中的黄石墙遗迹

图片 4.jpg

小院入口对保留的建筑墙体进行保护与展示,六间五柱,大木构架为抬梁穿斗混合式,具有江南民居建筑的典型特点。

▼小院入口

图片 6.jpg

▼前院鸟瞰

图片 7.jpg

前院空间原是建筑的厅堂,倒塌后形成了较为开阔的院落空间,现在作为酒馆的的外摆区。

▼前院空间

图片 8.jpg

植物的选择上使用朴树、鸡爪槭、大吴风草等江南园林中常用的植物,衬托宁静古朴的氛围。

图片 9.jpg

▼前院夜景

图片 10.jpg

图片 11.jpg

▼酒馆室内

图片 12.jpg

室内空间完整保留了原始建筑的结构、门窗及铺地。

图片 13.jpg

▼室内座椅区

图片 14.jpg

贯穿空间的门窗作为链接室内外空间的“纽带”,上午阳光可以从柱子与墙体中间的缝隙钻进来到室内区域,营造特别的阴翳美感。

▼酒馆二层

图片 15.jpg

我们在保留后院遗存的黄石墙垣的基础上,增加了平台、阶梯、座椅等元素,以满足酒馆业态的使用需求。新业态的植入使这片废墟重获新生,让遗迹不再是仅供观看的展品。

▼后院空间

图片 16.jpg

▼保留的老灶台

图片 17.jpg

老灶台延续了过去的烟火气,如今虽野草丛生,但也别有意趣。

图片 18.jpg

图片 19.jpg

图片 20.jpg

图片 21.jpg

▼从窗洞向外看

图片 22.jpg

▼从后门回看小院

图片 23.jpg

▼砖墙细部

图片 24.jpg

图片 25.jpg

▼雪中的小院

图片 26.jpg

▼轴测图

图片 28.jpg

▼剖面图

图片 29.jpg

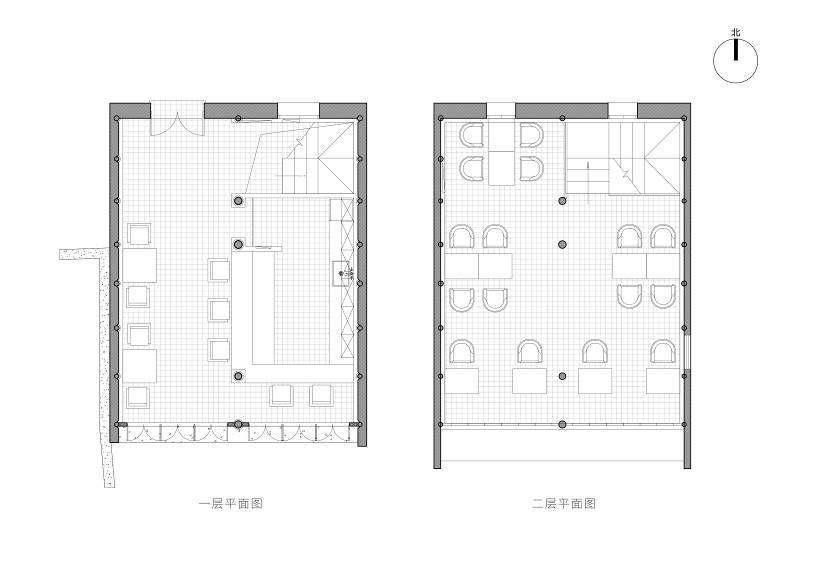
▼酒馆平面

图片 30.jpg

项目名称:黄墙里的小酒馆. 焦溪是家小院
策略指导:程宏 (大运远见)
完成年份:2023.11
项目面积:340平
项目地点:常州焦溪古镇
业态规划:江苏大运远见文化科技公司
设计单位:平介设计,远见文旅
设计团队:
景观设计:曹开源,肖湘东
建筑、室内设计:李文靖,杨楠,吴江,韩旭彤
业主:江苏大运远见文化科技公司
摄影师:徐英达

图片 3.jpg
图片 27.jpg

parallect

积分:46

私信

全部评论
您需要登录后才可以回帖 登录 | 立即注册

本版积分规则