请选择 进入手机版 | 继续访问电脑版
 找回密码
 立即注册

QQ登录

只需一步,快速开始

微信登录,快人一步

QQ登录

只需一步,快速开始

微信登录,快人一步

深圳中海云启源境

2025-08-14 发布
首页 / 设计类 1509 0 0

GM广亩景观

积分:34

私信

本帖最后由 GM广亩景观 于 2025-8-18 11:21 编辑

项目位于深圳南山区中部组团区,地处粤港澳大湾区创新前沿,周边汇聚高科技产业、文化创意与南头古城历史文脉,同时毗邻双界河生态水廊,教育资源丰富,商业配套成熟。景观思考如何在繁华的都市中打造一处自然与人文完美融合的“南洋拾光/旧梦”.

深圳的文化基因源自岭南文化的开放包容与开拓创新。作为岭南滨海商贸重镇,南头古城见证了深圳作为近代华侨文化发祥地的历史传承,其兼容并蓄的商贸传统与敢为人先的开拓精神,至今仍是这座城市的文化底色。我们通过将岭南文化与新加坡莱佛士酒店(殿堂级南洋老钱风酒店)相融合,复刻经典时光场景,用现代手法演绎岭南文化与南洋风情相结合的“东意西境”。展现其美学魅力与艺术感。引领时尚前沿。试图打造一个自然与人文的完美融合“奢享典藏·南洋花园”,为居者建立一个全方位沉浸式的南洋风情居所,让居者在都市中心体验热带花园的慵懒奢华,实现文化传承与时尚生活的完美平衡。

644A4001.jpg

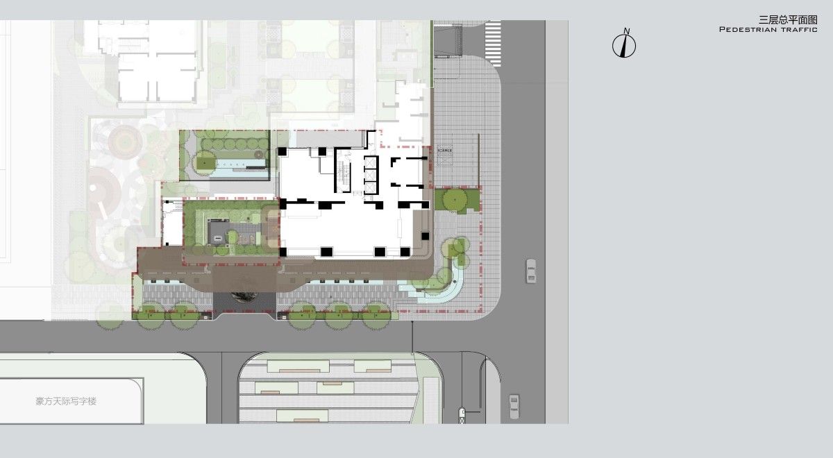
本项目以立体园林景观为核心突破,通过垂直空间串联手法,将首层归家动线与三层休闲花园巧妙融合,形成双层级互动体系。首层空间以动态生活场景为主轴,通过热带植物造景营造活力归家体验;三层"生活环"则打造悬浮式花园,形成静谧的空中会客厅。两个功能层通过立体绿化和景观楼梯形成视觉与动线的双重呼应,既实现了动静分区又保持空间对话,重新定义了热带宜居社区的垂直生活范式。整体分为四重空间。(一楼分为三重空间,三楼为一重空间。)
一层平面图.jpg
一层平面图

三层平面图.jpg
三层平面图
功能分区.jpg


竖向&尺度.jpg

1、【初见·印象】形象昭示
转角初遇,叠级水景为基底,搭配热带植物背景,结合南洋风奢石与高定格栅穿插设计,打造醒目昭示界面。沿路设置5组动态跳泉水景,引导视线至售楼处,象征财源汇聚。精选意大利进口宝格丽绿大理石,其独特的深绿色泽与银色纹理交织,彰显奢华质感,与定制异形格栅相融,塑造精致高端的视觉印象。

644A3932-HDR.jpg

644A4448.jpg

644A3786.jpg

流线分析.jpg

2、【入境·过渡】领域门庭
移步换景,信步而行,眼前豁然开朗—这里是小区主入口门庭,门庭以磅礴气势傲然矗立,彰显尊贵气度。地面采用安哥拉黑奢石精心铺就,平整大气;门楼顶部以星钻为灵感,打造流光溢彩的屋顶,日夜璀璨夺目。银灰香槟金弧形檐顶细节考究,尽显精工品质。中央水景宛如铂金钻奢石镶嵌于南洋拼花地砖之上,结合智能波光跳泉,象征财富流动;圆形设计藏风聚气,寓意圆满。两侧威斯康白花岗岩景墙纯净典雅,搭配四季酒店同款南洋风花钵,增强归家仪式感。高耸门廊恢弘大气,精雕细琢的细节处处匠心独运,每一次归家都是一场奢华盛宴。

644A3967.jpg

644A3984.jpg

644A4748.jpg

DJI_20250717060435_0822_D.jpg

DJI_20250717080627_0867_D.jpg
3、【归心·静谧】静谧水院
穿过气势恢宏的迎宾门廊,一方静谧水院悄然呈现。水波轻漾,倒映天光云影。宝格丽绿奢石与维斯康白花岗岩相映,南洋绿与雅致灰穿插其间,尽显艺术美学。艺术水钵串联景墙与叠水,刚柔相映。绿植摇曳,光影斑驳。午后漫步,听水观景,感受自然与艺术的交融,让家宅更添生机与意境。

644A4117.jpg

644A4252.jpg

644A4600.jpg

4、【驻足·茶叙】茶歇花园
拾级而上,来到了浪漫优雅的茶歇花园。充满南洋记忆的复古吊扇转动斑驳光影,将热带的风染上旧时光的茶香。云石柱灯透出琥珀光晕,如凝固的海岸暮色。彩釉陶瓶静静立在廊柱旁,釉色里藏着昔年的故事。藤椅围合处,友人笑语与香茅茶的气息交织,夕阳为铁艺屏风勾上金边。时光在这里慢下来,化作茶杯里的一抹余温。

644A3878-HDR.jpg

644A4313.jpg
DJI_20250718061845_0041_D.jpg




GM广亩景观

积分:34

私信

全部评论
您需要登录后才可以回帖 登录 | 立即注册

本版积分规则