请选择 进入手机版 | 继续访问电脑版
 找回密码
 立即注册

QQ登录

只需一步,快速开始

微信登录,快人一步

QQ登录

只需一步,快速开始

微信登录,快人一步

乡村振兴咖旅庄园研学中心

2025-07-04 发布
首页 / 设计类 366 0 0

parallect

积分:46

私信

乡村振兴咖旅庄园研学中心

东回镇位于云南省普洱市澜沧拉祜族自治县东回镇为了发展旅游业特色产业,对下属村落进行整体环境、产业和布局改造改造后命名为改新村实现了村容村貌和产业发展的大变样。改新村四周大山环绕,有良好的地理气候风貌,当地以咖啡为主要产作物,作为上海黄浦区对口澜沧县的东西协作扶贫项目,计划在此基础上设立咖啡加工工厂并建立配套的咖旅庄园。
▼项目鸟瞰图Overhead view ©王一翔
项目鸟瞰图,Overhead view %U00A9王一翔  (4)-min.jpg

▼总平面图General plan  © 平介设计

总平面图,General plan  %U00A9 平介设计.jpg

咖啡研学中心,作为与咖啡产业贯通一二三产的门户建筑,被设立在整个村子民居和工厂交接的主入口处。项目旨在打造一个让人落脚休憩与观光的场所,普及咖啡相关知识提供咖啡体验开展咖啡文化交流,同时在此为当地少数民族村民和对咖啡感兴趣的外地人进行咖啡产业相关的培训(采摘、烘培、冲泡等),并在一定程度上补足村子的公共配套基础设施(社区图书馆、卫生间等)。

▼项目鸟瞰图Overhead view ©王一翔
项目鸟瞰图,Overhead view %U00A9王一翔  (1)-min.jpg
研学活动Research and study activities  © 乡村笔记
研学活动,Research and study activities  %U00A9 乡村笔记-min.jpg
乡村笔记是一个专注于乡村场景的教育服务平台,而研学中心项目也缘起政府引入乡村笔记作为运营方对该建筑进行重新的策划和定位。首次到达现场是十一长假的一个阴雨天,通过曲折蜿蜒的山路到达村落。初具雏形的钢结构框架是前期工厂建设时规划的,在路边就能很明显看到这个构筑,它坐落于整个村落的中心点,周围原始的村落房屋环绕,设计的任务则是在这个框架的基础上重新设计以满足新的功能需求。



施工过程Construction records ©平介设计
施工过程,construction photos %U00A9平介设计-min.jpg
云南位于地震带上,建筑抗震等级位9级,那原有的钢结构就不能减只能加,这对建筑的空间和造型就有了一定限制,在和结构专业的几次交流后,通过结合造型的推敲(屋面形式一定程度上延续传统拉祜族民居的形式并进行变化),最终实现结构效能与空间品质的同步提升,我们将平面修改如下:



▼首层平面图Ground plan  © 平介设计
首层平面图,Ground plan  %U00A9 平介设计.jpg

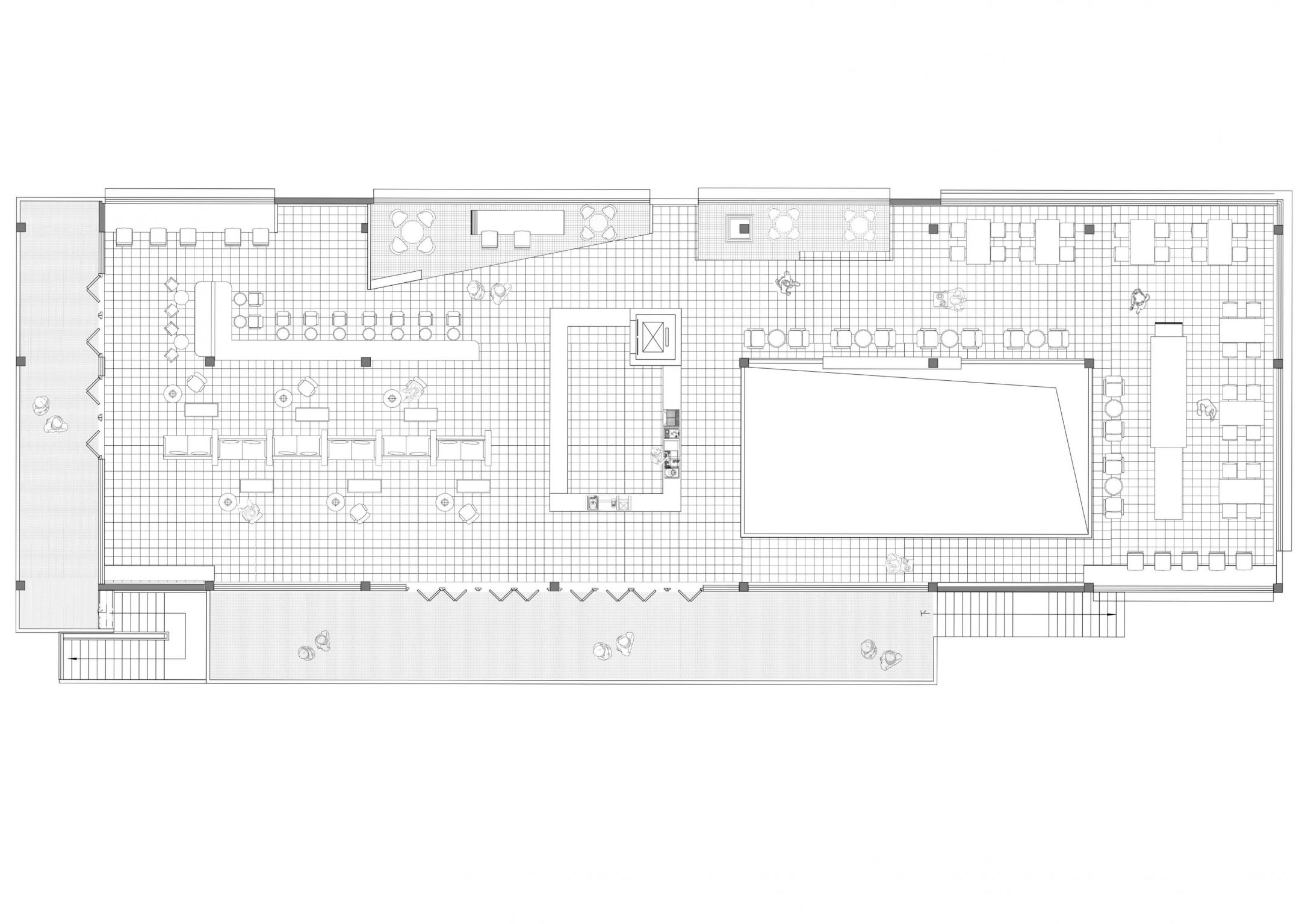
设计之前我们也对场地进行了深刻的思考,咖啡豆从种植和到烘焙出成品是一个漫长的过程,而一杯好的咖啡应该有让人陶醉其中的感觉。因此,我们以咖啡产业全生命周期为设计脉络,构建出沉浸式的空间叙事体系。首层通过半开放复合空间实现建筑与自然融合,可灵活承载主题展览、创意市集等功能,将局部作为咖啡研学使用的室内空间,而中庭的通高空间与二层有功能的联系和空间的体验。二层通过双景观露台构建产业对话,一侧朝向厂区和种植区,一侧朝向进村主路和村落,可通过两侧的室外楼梯到达,室内空间采用柔性隔断设计,通过不同的桌椅形式分割成多样的体验空间。

▼爆炸图Diagram ©平介设计
爆炸图,Diagram %U00A9平介设计.jpg
▼项目鸟瞰图Overhead view ©王一翔
项目鸟瞰图,Overhead view %U00A9王一翔  (2)-min.jpg

▼项目外观Exterior of the project ©王一翔
项目外观,Exterior of the project %U00A9王一翔  (9)-min.jpg

▼室外楼梯,Outdoor stairs ©王一翔
室外楼梯,Outdoor stairs %U00A9王一翔-min.jpg
▼研学中心室内Interior of Research and Study Center©王一翔
研学中心室内,Interior of Research and Study Center%U00A9王一翔 (4)-min.jpg

在建筑的二层,是访客在整个场地游览一圈之后的歇脚点,我们可以从多角度感受这个村落的历史背景,点一杯咖啡细细品味,在品味咖啡的同时一侧可以俯看整个工厂厂区,另一侧能看到村子各个角落。

▼二层平面图the 2nd floor plan© 平介设计
二层平面图,the 2nd floor plan%U00A9 平介设计.jpg

▼项目外观Exterior of the project ©王一翔
项目外观,Exterior of the project %U00A9王一翔  (6)-min.jpg
align=left]▼研学中心室内Interior of Research and Study Center©王一翔
研学中心室内,Interior of Research and Study Center%U00A9王一翔 (2)-min.jpg

主立面作为在大路上就能看到的展示面,我们希望让他既能和新厂房统一,又需要对村落原有的建筑进行呼应,因此在材料使用上局部采用常见的红砖,所有的金属面都采用银白色,而竖向交通流线的用一条镜面点缀,反射建筑前的村落与自然环境,消解新旧对立的同时让新建的建筑与环境产生对话。



▼项目鸟瞰图Overhead view ©王一翔
项目鸟瞰图,Overhead view %U00A9王一翔  (3)-min.jpg

沿路主立面,The main facade along the road ©王一翔

一层的研学空间四周采用全落地玻璃,可根据活动功能需要来开启或关闭,开启时形成室内外贯通的教育复合空间,实现研学活动与户外场地的功能互动,并在一定程度上预留灵活性可满足不同形式的活动开展(市集、表演等)。


沿路主立面,The main facade along the road %U00A9王一翔-min.jpg

▼项目外观,exterior of the project ©王一翔
项目外观,Exterior of the project %U00A9王一翔  (8)-min.jpg
▼一层廊道Corridor on the first floor. ©王一翔
二层主立面室外露台远眺村落风景,纵向贯通历史建筑群轮廓,横向串联生活场景片段,细细感受村落文化和生活气息。

一层廊道,Corridor on the first floor. %U00A9王一翔-min.jpg
▼项目外观,exterior of the project © 平介设计
项目外观,Exterior of the project %U00A9王一翔  (3)-min.jpg
▼项目外观,exterior of the project © 平介设计
项目外观,Exterior of the project %U00A9王一翔  (1)-min.jpg
二层面向厂区和种植区方向采用大面积玻璃的立面,以全景视野构筑起与古村落人文肌理的对话窗口。室内空间创新植入多维几何体块,营造视觉与触觉交融的沉浸式体验动线——游客既可透过落  地窗饱览原生景观与村落风情,又能在移步易景中见证咖啡豆从果实到杯中的生命之旅,感受自然馈赠与人文智慧的完美交响。

▼项目外观,exterior of the project ©王一翔
项目外观,Exterior of the project %U00A9王一翔  (5)-min.jpg
▼项目外观,exterior of the project ©王一翔
项目外观,Exterior of the project %U00A9王一翔  (4)-min.jpg

结合天窗设置了沙发和卡座区,丰富不同的体验空间的同时也让人有闲适,惬意的感受。

▼研学中心室内(施工中),Interior of Research and Study Center©王一翔
研学中心室内(施工中),Interior of Research and Study Center%U00A9王一翔-min (1).jpg

▼研学中心室内,Interior of Research and Study Center©王一翔
改新村咖啡研学中心是乡村振兴中产业与空间融合的创新实践,通过建筑空间与生产场景的有机互动,搭建起城乡文化交流的实体平台,用全景玻璃界面、灵活隔断和互动体验路线,将咖啡生产流程转化为沉浸式教育场景。设计中通过红砖与镜面的材料对话,以及生产展示与村落景观的视线渗透,在保留乡土记忆的同时构建起城乡文化交流平台,为乡村产业升级提供了可复制的空间转型样本,让曾经无人问津的古村焕发生机。

研学中心室内,Interior of Research and Study Center%U00A9王一翔 (1)-min.jpg

▼项目鸟瞰图Overhead view©王一翔

项目鸟瞰图,Overhead view %U00A9王一翔  (6)-min.jpg
▼方案模型scheme model  © 平介设计 方案模型,scheme model  %U00A9 平介设计.jpg
▼项目鸟瞰图Overhead view©王一翔
项目鸟瞰图,Overhead view %U00A9王一翔  (5)-min.jpg
▼项目外观,exterior of the project ©王一翔
项目外观,Exterior of the project %U00A9王一翔  (7)-min.jpg
项目外观,exterior of the project © 平介设计
项目外观,Exterior of the project %U00A9王一翔  (2)-min.jpg

▼剖透视图Sectional perspective view © 平介设计
剖透视图,Sectional perspective view %U00A9 平介设计 (1).jpg


草地前,grassland view%U00A9王一翔-min.jpg

parallect

积分:46

私信

全部评论
您需要登录后才可以回帖 登录 | 立即注册

本版积分规则