请选择 进入手机版 | 继续访问电脑版
 找回密码
 立即注册

QQ登录

只需一步,快速开始

微信登录,快人一步

QQ登录

只需一步,快速开始

微信登录,快人一步

农夫山泉 (安徽黄山) 饮用水生产基地建设项目

2024-08-23 发布
首页 / 设计类 3037 0 0

Obermeyer

积分:126

私信

本帖最后由 Obermeyer 于 2024-8-30 14:19 编辑

项目概述:
本项目位于安徽省黄山市黄山区耿城镇,总占地167亩,距黄山主城区大约 3.5Km,距黄山风景区约 12 公里的车程,距合肥市约 250 公里。
项目主要功能有生产厂房、办公、仓储、游客接待中心、附属用房等。项目将建设成为一座现代化的瓶装饮用水及饮料生产工厂。工程具有合理的空间规划、现代简约的建筑设计、尖端的生产设备以及良好的工作体验。
项目总用地面积为 111210㎡,厂房为单层,办公部分地上2层。另单独设置污水处理站化学品仓库、地下水泵房及水池、动力站及门卫等。总建面积70540㎡。建筑限高24米。

总平面图:
image001.jpg

项目效果图:
image014.jpg

image015.jpg

image016.jpg

image017.jpg

image018.jpg

image019.jpg

image020.jpg


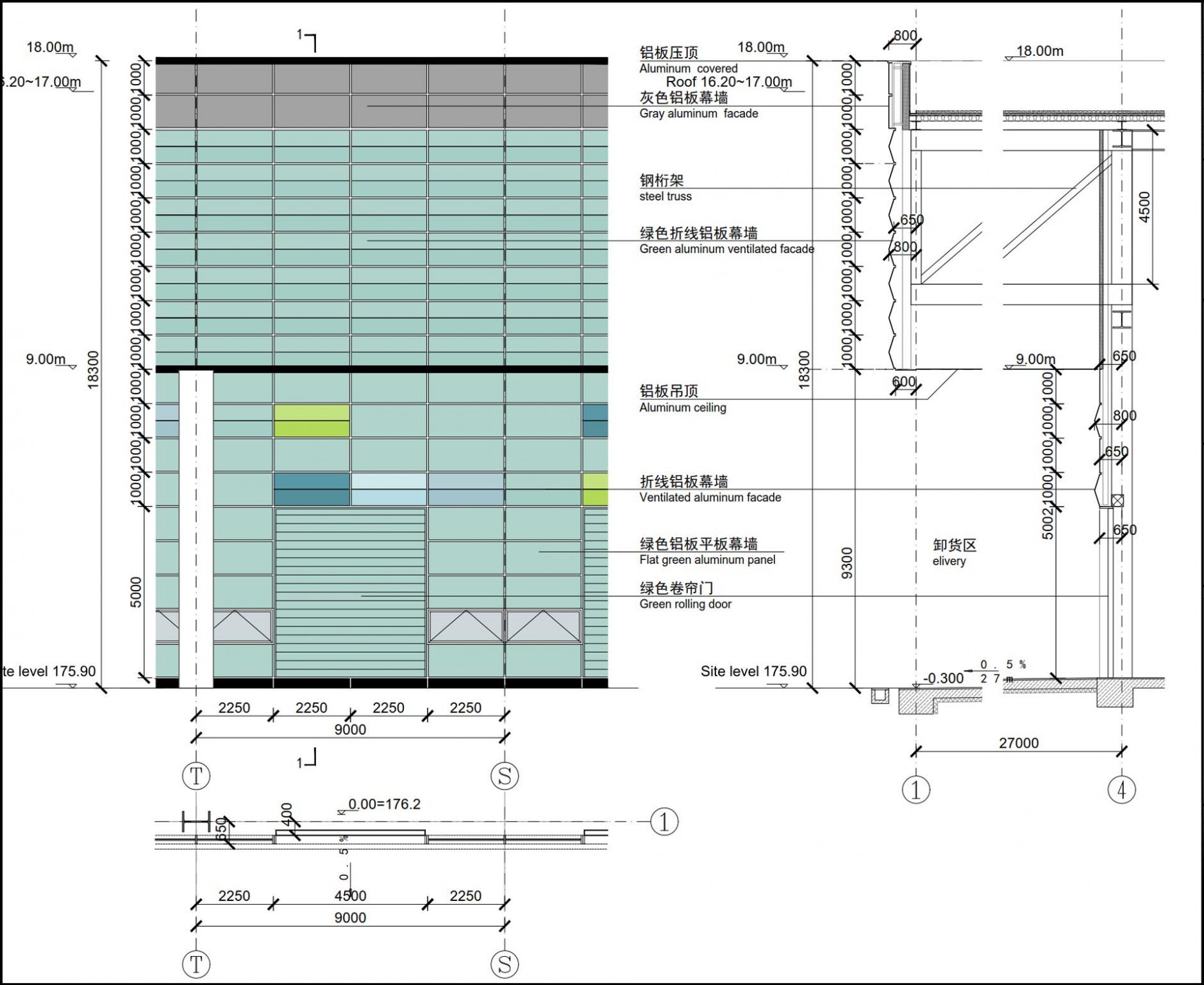
主要设计图:
image002.jpg

image010.png

image011.png

image005.jpg
image006.jpg
image007.jpg
image015.png
image016.png
image010.jpg


项目区位图、交通分析图:
image012.jpg
image011.jpg

image013.jpg

设计理念:
设计理念以与农夫山泉“天然,健康”的品牌理念相匹配为出发点,汲取黄山当地自然肌理与色彩应用于设计中,使大型工业建筑与自然环境之间展对话。立面设计应用了“竹”的元素,使用绿色铝板与圆柱杆件,营造出一片藏于群山中的竹林,与黄山的自然风光完美融合。建筑的理念以人为本,致力于打造宜人舒适,环保健康的生产基地。力求保证工业建筑的简洁庄重,在满足工艺要求的基础上,注重流线与厂区建筑群设计的整体性。

项目难点及亮点:
不规则的场地条件一定程度上为保证生产基地土地使用率带来了难度,设计团队通过在河岸侧设计阶梯状的立面形状,在契合地形、满足使用空间的同时,丰富了沿河建筑景观造型层次,也满足了厂房物流运输的要求。
作为靠近著名风景区的厂区,
建筑的设计也要考虑到与景区周边环境与景观和融合。厂区单体建筑建筑外立面均选用浅绿色与灰色铝板,横向布置的板面与玻璃幕墙加强了立面的水平延展,使其巧妙融入周边优美环境的同时也整体和谐统一。

在厂房的主入口及局部区域,设置彩色的铝板,让立面更为活跃更有辨识度。在靠近主入口区域设置竖向的杆件,为建筑带来丰富的光影与动态的气息。简洁明快的建筑风格,对立面的巧妙模数划分与细致的细部设计,赋予大体量的厂房建筑以亲人的尺度,让厂区的氛围更为和谐,人性化。

厂房内部设置了一条可以为外来的参观者展示生产,制造,包装等流程的专用参观通道。参观流线起始于面对园区主入口的门厅,拾阶而上来到位于二楼的展厅与报告厅,而后参观者被引入穿过生产车间的空中走廊,展示从原材料入库到包装完成的现代化制造与物流过程。其中穿插着品水区,展示节点等区域,最后把参观者带回一层入口门厅。车间里连绵起伏的参观走廊进一步加深了访客的体验感与参与感。

项目的价值:
农夫山泉生产基地全面投产不仅可以为当地带来每年1-2亿元的税收贡献,也将为当地创造数百个工作岗位,为当地的经济发展带来强有力的新契机。黄山项目也将成为农夫山泉风景最美的生产基地。未来可利用当地的旅游资源,将生产基地面向游客开放,开发工业旅游的新前景,打造工业旅游示范工厂。与此同时,通过高品质的设计使工业基地成为一个建筑性的地标,以恰当的方式对外展示农夫山泉的品牌形象,并为广大饮用水消费者带来来自黄山大自然赋予的美好与馈赠。

Obermeyer

积分:126

私信

全部评论
您需要登录后才可以回帖 登录 | 立即注册

本版积分规则