请选择 进入手机版 | 继续访问电脑版
 找回密码
 立即注册

QQ登录

只需一步,快速开始

微信登录,快人一步

QQ登录

只需一步,快速开始

微信登录,快人一步

嘉兴华润润府项目北地块景观花境工程

2023-09-20 发布
首页 / 施工类 4027 0 0

QIN满庭芳@

积分:20

私信

本帖最后由 QIN满庭芳@ 于 2023-9-20 16:45 编辑

■ 花境主题:
以“绿野仙踪”作为花境主题,四个区域分别以绿野绿谷绿踪绿波四个主题来诠释。色彩以绿色为主,点缀蓝、紫、粉色,营造一种幽静野奢的氛围,开启一段沉浸式的山林之旅。从喧嚣到安静,从城市到家园,在奔波忙碌时坐拥一方幽静,回到一处可静享时光、置放心灵的归处。                                                                        花境主题平面图    主题平面图.png
绿 野 仙 踪
◆绿野——自然生态
◆绿谷——野趣纯净
◆绿踪——浪漫趣味
◆绿波——嫣然芬芳
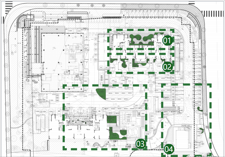
■ 花境种植区平面分布图:
640.png
■ 01:架空层,绿野主题
位置: 位于楼层底部的架空层。思路:打造荫生、热带花境,选用叶片硕大的天堂鸟和滴水观音,通脱木,搭配枯树、鸟巢蕨、肾蕨、巴西美人、玉簪、大吴风草、金叶石菖蒲等植物来进行整个空间的打造。带来纯净的绿意,宁静且高级感。

a780be88ada8b91ff8f0108bfc3626d(1).jpg

fbb729a7f88f58b9b2cff549f142604.jpg

WPS拼图0(1).png

■ 02:入户花园,绿谷主题

位置:位于入户花园,进入样板间的绿地内。

思路:清新简约配置手法,色彩以绿色为主,通过以蒲葵、天堂鸟、滴水观音、圆锥绣球、无尽夏等大叶植物做为焦点,搭配亚麻、蛇鞭菊、花叶玉蝉花等竖向线条植物,填充玉簪、肾蕨、东方荚果蕨等,点缀绿白色芙蓉菊,丰富画面色彩。


2.png


DSC00346.jpg

DSC00350.jpg

DSC00353.jpg
WPS拼图0(1).png

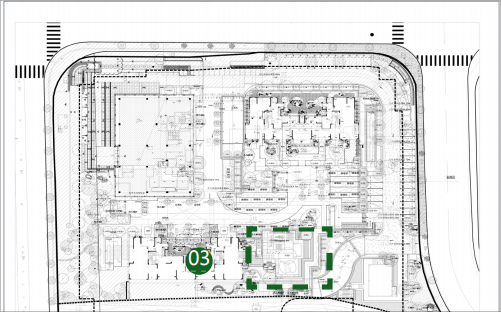
■ 03:成长花园,绿踪主题

位置:花境点位三,位于成长花园。

思路:色彩以绿,橙、黄。结合上层乔木空间,花境植物以不同明度的绿色如狐尾天门冬、六月雪肾蕨、大吴风草等营造生机盎然的整体基底。大叶植物如无花果、象腿蕉、无尽夏、向日葵、松果菊等做焦点,以线型材料火炬花棒冰、花叶玉蝉花、百子莲等形成质感的对比,增加透视。点缀金鸡菊、绣线菊等宿根花卉,营造温暖、趣味的花境效果。点缀紫色萨利芳、满天星、草海桐,与主橙、黄色互补。

3.png


DSC00469.jpg


DSC00483.jpg


DSC00495.jpg


04: 入口花园,绿波主题
位置:花境点位四,位于小区入口仪式花园。思路:色彩以绿、粉、紫点缀,以大叶植物蒲葵、无尽夏、绿叶美人蕉、芭蕉金盘,穗花牡荆等为焦点,填充大吴风草、肾蕨,萨利芳鼠尾草、蓝雾草、八宝景天、穗花婆婆纳、香彩雀等,呈现绿意盎然生气勃发的景观效果。
4.png

DSC00433.jpg

DSC00446.jpg

DSC00455.jpg



QIN满庭芳@

积分:20

私信

全部评论
您需要登录后才可以回帖 登录 | 立即注册

本版积分规则