设计技术及创新要点
一、项目规划意义
2017年是八一南昌起义暨中国人解放军建军90周年,中国人解放军是新时期捍卫和平、保家卫国的核心力量,建军90周年纪念意义深远。南昌是我军“军旗升起的地方”,弘扬“八一”精神,八一广场是重要的标志性场所。 八一广场的改造是老城改造的引擎点。八一广场是城市精神灵魂的所在地,广场的改造可提升南昌整个城市形象,发掘八一精神文化内涵,升华南昌城市精神,有利于南昌市城市总体规划的实施,有利于南昌市城市整体环境的提升,带动广场周边产业发展。
二、规划设计原则
纪念性原则:以人为本原则:功能性原则:地方特色原则
三、规划设计定位研究:
1、 区位影响——城市中轴线重要节点 北京路不仅是旧城区发展轴,更是南昌东西向城市中轴线。轴线上的八一广场位于历史城区东侧,为旧城东扩重要融合点。
2、 文化资源 南昌市区八一系列红色文化资源独特超群,如八一起义总指挥部、八一公园、八一朱德、贺龙、叶挺指挥部等。 八一广场为八一南昌起义纪念场所,是对八一系列红色文化的集中和放大,结合交通优势,可作为纪念广场。 八一广场作为南昌市中轴线上的重要红色文化节点承载着特殊城市地位和功能,八一广场的红色文化引领整个江西红色文化。
经研究定位为:纪念广场、城市客厅
八一广场是集纪念活动、城市休闲、教育科普、旅游集会多功能于一体的综合性红色文化活动区。
设计理念:
1927年8月1日南昌起义是共产党打响武装反抗国民党反动统治的第一枪。八一广场是纪念这次伟大革命运动的历史圣地。八一广场原设计以纪念八一南昌起义为核心,忽略了当时革命运动前因后果及南昌起义对中国未来革命和新中国成立后带来的深远影响。因此找回历史记忆、弘扬八一精神、复兴红色文化、重新抒写南昌人文生活新篇是广场改造的关键。
理念是“追忆历史、共建未来”“以馆为核、传承八一”
追忆历史不仅是“五四运动”带来共产主义思想和新民主主义革命的历史追忆,也是在当时严峻革命形势下继续保持革命精神的追忆。
共建未来是设计理念的升华,南昌起义敢于斗争的精神,在革命战争年代和平建设时期,都是鼓舞和激励党和人民建设中国特色社会主义伟大事业的强大精神力量。以江西展览馆为核心,统一建筑风格,留存城市历史记忆,传承八一文化。
改造目标——打造“城市新标,文化之魂”,白天看景点,晚上看亮点,迎接建军90周年!
四、项目规划设计规划结构是“两轴、四区、多点”。
总体设计借鉴天安门广场设计。以“八一纪念塔为核心”分别向广场南、北两端拓展,从广场南端历史景墙、中心纪念塔、革命雕塑、军史长廊到北端万达商业中心,在时空上形成串联,展现党从五四运动到新中国成立至今发展历程的穿越之轴;以江西省展览馆为核心,拆除广场东西向轴线中间的灯柱、绿篱花坛,打通广场东西视线通廊,形成北京路与展览馆之间的怀念之轴。四区分别为追忆区、纪念区、怀念区、休闲区
五、项目新技术新材料的应用:
1、 建筑外立面采用铝锰硅板作外墙材料,该材料性能稳定,不易变形,质量轻。
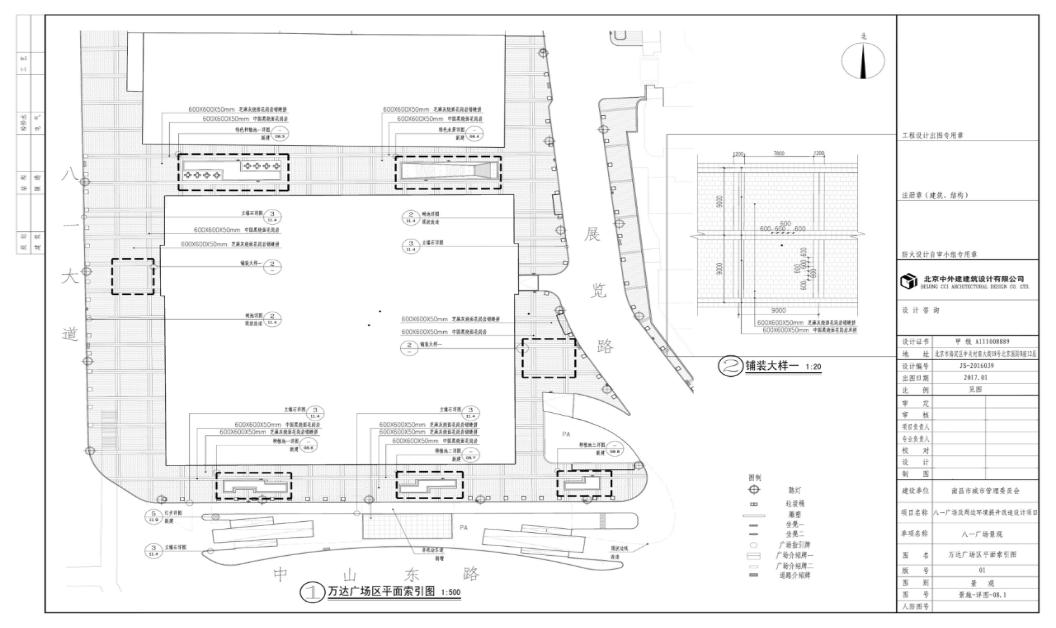
2、 广场小品指示牌,用透光混凝土,该材料既有混凝土的坚固,又能透光20-30%。人行道地面采用陶瓷透水砖,该材料透水率可达80%,又响应了海绵城市的设计要求。广场上新用的花岗岩铺装,设计考虑景观效果及将来人流安全要求,花岗岩厚度加大,要求达到A级标准,局部设计要求花岗岩表面需要做旧处理的,采用新技术进行做旧处理。追忆区文化墙采用砂岩浮雕,广场北路的景观墙体选用江西风景区题材的镀锌钢板墙体彩绘;纪念碑顶红旗年久失修,颜色老化,采用新技术进行了上色,达到景观效果。交通标牌表面用高级的3M钻石级反光膜,时间保证更久,反光效果更好。
设计概算 总投资建安费约5.91亿,其中南昌城管委负责广场2.63亿,西湖区负责部分建筑1.38亿,东湖区负责部分建筑0.54亿,交管局负责0.15亿
竣工结算 广场景观工程竣工结算1.952亿
决算与概算的出入原因 1、主材有价差,在结算时的单价比概算时低;
2、项目实施过程中对广场景观墙、音乐喷泉、绿化和广场铺装等进行了设计变更,从而降低了工程量,减少了成本;
3、概算时费用为2.6亿,结算时费用为1.95亿,节约了0.65亿的成本。
其他 亮点:
1、音乐喷泉:是全国最大的矩阵式音乐喷泉,利用声光电新技术和三维摇摆喷头,将红色文化与南昌水乡文化相结合,营造出独特的南昌印象,把军队的刚毅和江西的柔情展现的淋漓尽致。
2、军史长廊:透明玻璃步行道,长49米、宽4.9米,增加习总书记任中央军委主席。内部增加通风和投影设备,夜晚播放微电影。
3、照明:提炼市花金边瑞香设计元素,提升路灯的大气感与装饰感,突显南昌地方特色。
4、雾森:广场内小径两侧设置雾森,夏季维护自然生态,形成云雾缭绕的视觉效果。
5、跳泉:取消了水幕电影,改为小型跳泉。
6、砂岩浮雕墙:位于广场南端,墙高4米,总长约193米,砂岩浮雕墙采用18幅历史代表性的江西红色建筑图组成,使红色文化氛围更加浓厚。
7、山水风景名墙:位于广场东侧,墙高4米,总长约474米。喷绘43幅江西风景画,再现了江西的秀丽山水和人文文化。
8、建筑立面:以江西展览馆为核心,留存历史记忆、传承八一精神,对两侧建筑立面风格,采用中式庄重的立面元素,以浅黄色为主色,苋红色为装饰色。对周边40栋建筑进行立面提升改造。
9、广告拆除:将广场及周边可视范围内屋顶大型广告和建筑立面广告进行拆除。
注:如有超概算的情况,需注明其主要原因
设计主要特点: (限制在1500~2000字以内)
一、八一广场改造目标
在重拾历史记忆、弘扬八一精神、复兴红色文化等六点等规划设计的基础上,本项目定位为:纪念广场、城市客厅。
二、八一广场改造措施
设计将以“八一精神为核心”塑造中国红色文化从1919年至今的发展历程,在三个方面改造。引入海绵城市和智慧城市的设计理念。
第一、广场景观提升方案理念 :“追忆历史、共建未来”
追忆敢于斗争的革命精神;共建社会主义伟大事业。在此主题下,形成两轴、四区、多点的规划结构。总体构图借鉴天安门广场。
“穿越之轴”以南昌起义纪念塔为核心,中国红色革命的发展历程为主线,分别向南、北拓展,形成穿越时空的轴线。将广场南侧的街头绿地、纪念塔、中心文化广场、休闲广场和北部的万达商业广场串联,展现党从五四运动到新中国成立至今的发展历程。
“怀念之轴”以江西省展览馆为统帅向东至北京西路,拉直东西向通廊,形成更明朗的东西向景观轴线,缅怀红色革命。四区:追忆广场、纪念广场、怀念广场、休闲广场
追忆广场:位于孺子路南侧以追忆1919-1927党的发展史为主线,分别设计:以八一起义及建军90 周年作为元素的入口花坛;以砖与金属枪为设计元素的雕塑;广场的核心设计是八一建军节模纹绿化设计,1m高微地形,采用时令草花摆放迎接八一建军节。 背景墙高四米,采用砂岩浮雕表达红色文化元素。
纪念广场:在保持原状的基础上对纪念碑进行清洗,四周4盏主灯清洗更换灯罩。周边16盏灯柱清洗出新,对雪松林进行修剪规整形态。金水河喷泉设计重点营造恢弘的气势,呈现“八一”、“五星”、和平鸽等元素,向八一南昌起义以及建军九十周年献礼。此次音乐喷泉改造共设置安装了1105个喷头,是全国最大的矩阵式音乐喷泉,主喷最高可达到30米,利用声光电新技术和三维摇摆喷头将红色文化与南昌水乡文化相结合,营造出独特的南昌印象,把军队的刚毅和江西的柔情展现的淋漓尽致。
怀念广场:保持原状的八字形入口取消现状轴线上的灯柱与花坛,将台阶由6级降低到4级,确保视线和流线的通畅性,原有浮雕景墙前的麦冬换成四季草花,绿化组团中删减部分小乔木,内部园路增加雾森,提升景观效果,也可缓解夏日的炎热。
休闲广场:东南角与西南角现状绿化改为五星模纹灌木搭配干净的草坪。取消LED屏,更换12盏灯柱,连通两侧绿地,设计祥云模纹绿化。军史长廊玻璃替换为内层具有弧度的玻璃,增加通风设备,将照明替换为LED节能灯带,周边用金色可移动栏杆,栏杆上雕刻八一军徽。取消水幕电影,改为抛物泉。正对展览馆前的两个通风井采用景墙结合绿植的处理手法,加入八一文化元素及江西秀丽山河的风景元素,体现“追忆历史,城市客厅”的改造理念。广场北路东侧原有围墙改造为江西风景区和南昌地标建筑题材的墙绘,并在立柱上增加五星元素。
二、建筑改造提升方案理念:以馆为核,保留原建筑特色,留存历史记忆
此次建筑改造范围主要指围合八一广场周边的核心区,主要包含江西省展览中心、丽华购物广场等重要单体建筑。整体建筑改造原则是以江西省展览中心为核心,借鉴天安门广场设计手法,形成了东西向主要轴线,南北向广场轴线。在建筑立面上,采用中式庄重的元素。建筑颜色采用浅黄色为主色调,深黄色为装饰色。
广告位立面控制围绕八一广场周边广告杂乱无章,以“拆、改、留”为主旨,根据高度分为几个层次:1)、24米以上及屋顶女儿墙以上的广告位及广告支撑的钢结构支架全部拆除。2)、10米~24米针对零散广告位置进行拆除。集中设置大型的广告位。 企业LOGO标志不得超过建筑女儿墙,统一采用黑体加粗字体,字体颜色用红色。3)、在10 米以下,店招颜色及材质进行统一,店招背景颜色进行统一。
第三、周边道路环境提升方案理念:文化渗透,丰富人文精神生活
道路附属设施包括树池、人行道铺装、窨井盖、地下人行道及其出入口标志均设计具有南昌本地特色的文化元素。城市家具:路灯、坐凳、垃圾桶、花箱、广告牌、公交站台、标识牌、配电箱、金色护栏等均表达出当地的设计文化。其中路灯此次提炼南昌市市花金边瑞香作为设计元素,更换了原广场周边亮度不高、灯具陈旧的松塔灯及路灯共179盏,增强了八一广场及周边道路的亮度,提升了路灯的大气感与装饰感,突显南昌地方特色。
|
-
图片1.jpg
(85.19 KB, 下载次数: 1975)
-
图片2.png
(417.33 KB, 下载次数: 2003)
-
图片4.jpg
(98.67 KB, 下载次数: 1925)
-
图片5.jpg
(76.47 KB, 下载次数: 2026)
-
图片6.jpg
(79 KB, 下载次数: 1956)
-
图片7.jpg
(89.24 KB, 下载次数: 1933)
-
图片8.jpg
(74.03 KB, 下载次数: 1952)
-
图片9.jpg
(77.35 KB, 下载次数: 1946)
-
图片10.jpg
(58.23 KB, 下载次数: 1926)
-
图片11.jpg
(66.37 KB, 下载次数: 1930)
-
图片12.jpg
(111.02 KB, 下载次数: 1987)
-
图片13.jpg
(125.88 KB, 下载次数: 1956)
-
图片14.jpg
(115.37 KB, 下载次数: 1943)
-
图片16.jpg
(94.21 KB, 下载次数: 1915)
-
图片17.jpg
(85.75 KB, 下载次数: 1930)
-
图片18.jpg
(72.35 KB, 下载次数: 1964)
-
图片19.jpg
(88.27 KB, 下载次数: 1963)
-
图片20.jpg
(77.3 KB, 下载次数: 1971)
-
图片21.jpg
(123.45 KB, 下载次数: 1930)
-
图片22.jpg
(38.77 KB, 下载次数: 1979)
-
图片23.jpg
(47.78 KB, 下载次数: 1950)
-
图片24.jpg
(56.49 KB, 下载次数: 2005)
-
图片25.jpg
(102.36 KB, 下载次数: 1956)
-
图片26.jpg
(171.45 KB, 下载次数: 1994)
-
图片27.jpg
(74.38 KB, 下载次数: 1947)
-
图片28.jpg
(132.54 KB, 下载次数: 1957)
-
图片29.jpg
(58.23 KB, 下载次数: 1962)
-
图片30.jpg
(31.88 KB, 下载次数: 1966)
-
图片31.jpg
(55.86 KB, 下载次数: 1940)
-
图片32.jpg
(57.32 KB, 下载次数: 1961)
-
图片33.jpg
(26.76 KB, 下载次数: 1911)
-
图片34.jpg
(56.94 KB, 下载次数: 1939)
-
总平面.jpg
(98.48 KB, 下载次数: 1984)
|